COMISION 0!
4 camere pentru o familie care vrea liniște, școli bune și orașul la ușă
Într-una dintre cele mai căutate zone centrale din București, pe Calea Moșilor, îți propun un apartament de 4 camere care bifează exact ce caută o familie cu doi copii: spațiu, acces rapid la școli bune și liniște în interior. Deși poziționat stradal, apartamentul are vedere pe spate, ceea ce înseamnă mai puțin zgomot și mai mult confort pentru viața de zi cu zi.
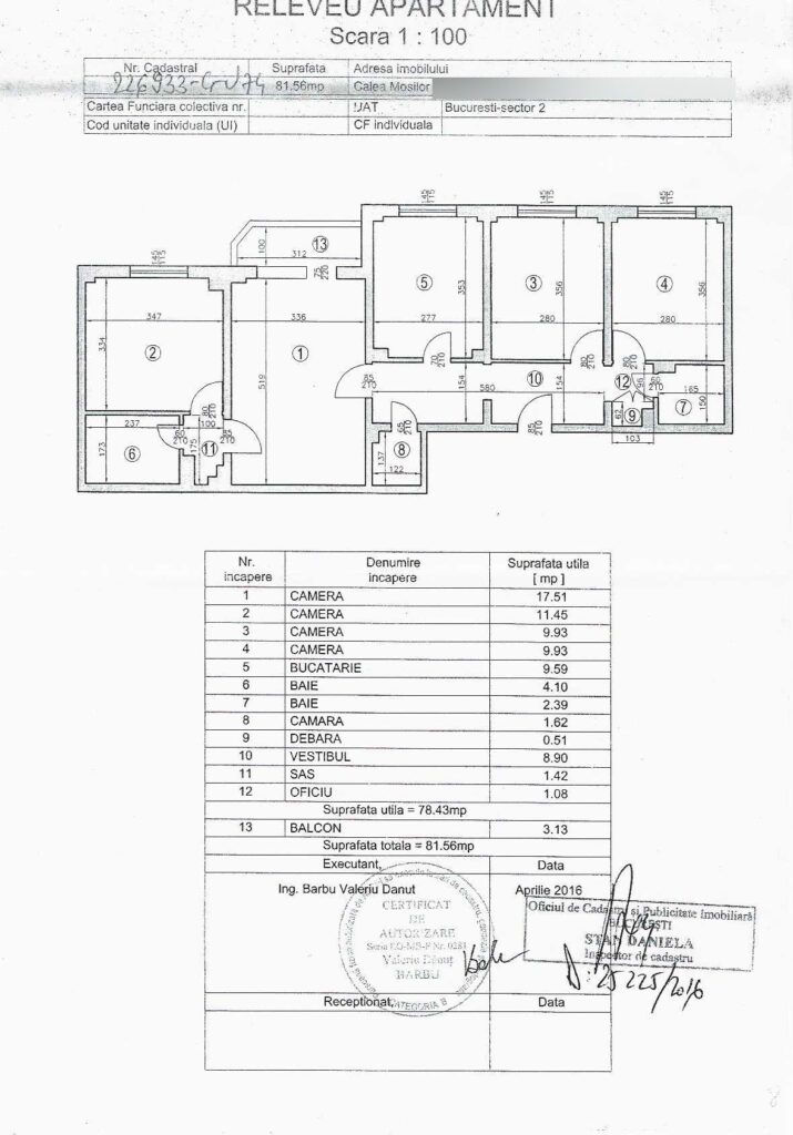
Compartimentarea este ideală: 3 dormitoare separate + living, oferind fiecărui membru al familiei propriul spațiu, dar și zone comune pentru timp împreună. Suprafața utilă de 78,43 mp (81,56 mp total cu balcon) este eficient organizată, fără pierderi inutile.
Unul dintre marile avantaje este accesul excelent la educație:
– Școala Gimnazială Sfântul Silvestru la doar 2 minute,
– în 10–15 minute de mers pe jos ajungi la Școala Gimnazială Iancului, Școala Gimnazială Nr. 307 si Școala Gimnazială Maica Domnului,
– licee de top precum Colegiul Național Cantemir Vodă, Colegiul Național George Coșbuc sau Liceul Teoretic Mihai Viteazul sunt toate în proximitate. Nici Colegiul Spiru Haret nu e departe!
Pentru viața de zi cu zi, ai totul aproape: transport public variat (tramvai, autobuz, troleibuz), iar metroul este la aproximativ 10 minute de mers pe jos. În spatele blocului există și loc de joacă, perfect pentru copii.
Blocul, construit în 1981, este reabilitat termic, iar apartamentul este situat la etajul 2 din 10 – un etaj ideal pentru acces rapid și confort.
Interiorul nu are finisaje recente, dar asta poate fi un avantaj major: îl poți amenaja exact pe gustul tău și al familiei, fără compromisuri. Pe scurt: o locuință echilibrată, într-o zonă unde timpul câștigat zilnic (drumuri scurte către școală, transport, facilități) face diferența reală pentru o familie.
Preț de vânzare 339.000 euro.
Pentru vizionari si informatii suplimentare:
Gabriel Dragomir
gabriel@okasa.ro, 0729.20.90.80



































